Neubauten mit dem Architekturbüro Vogt in Lemgo
Ihre Zufriedenheit liegt uns am Herzen.
Ob in Ihrem privaten und ganz persönlichen Bereich oder im Kreis Ihrer Mitarbeiter, in gewerblichen Räumen oder einer Industrieanlage – wir möchten, dass Sie sich wohlfühlen. Unser Architekturbüro befasst sich sowohl mit Neubau, Umbau, allgemeiner Sanierung als auch mit Kernsanierung. Der Wohnungsbau ist ein Bereich, der uns besonders reizt. Wir möchten Ihnen an dieser Stelle einige unserer Projekte aus dem Wohnungsbau vorstellen, deren Neubau, Umbau oder Sanierung – auch Kernsanierung – wir geplant haben. Derzeitig sind wir mit dem Umbau eines Einfamilienhauses in Lemgo Kirchheide beschäftigt. Es verfügt über 269 qm Wohnfläche, die über drei Ebenen verteilt ist. Insgesamt handelt es sich um 1.183 qm umbauten Raum. Dazugehörig ist eine Doppelgarage von 71 qm (umbauter Raum der Doppelgarage 285 qm). Das Einfamilienhaus besitzt eine wärmegedämmte Vollunterkellerung aus Stahlbeton und ist in Massivbauweise errichtet. Die Wanddämmung wurde mit 120 mm Mineralwolle in Kerndämmung ausgeführt.
Ein Verblendmauerwerk ziert die Außenhaut und eine Dachdämmung mit 220 mm Mineralwolle sorgt für eine gute Energieeffizienz. Ebenfalls wurde eine Erdwärmepumpe mit zwei Erdsonden von 90 Meter Länge verbaut. Es handelt sich zwar um keine Kernsanierung, aber ein sehr umfangreiches Projekt, bei dessen Sanierung auf zukunftsweisende Energietechnik geachtet wurde.
Ein weiteres Projekt aus dem Wohnungsbau ist ein Einfamilienhaus in Lemgo. Das EFH verfügt über 189,50 qm Wohnfläche, verteilt auf zwei Ebenen sowie 104,50 qm Nutzfläche im Kellergeschoss. Insgesamt umfasst das Haus 1.237 qm umbauten Raum und eine Carportanlage. Das Objekt besitzt eine wärmegedämmte Vollunterkellerung aus Stahlbeton und ist in Massivbauweise errichtet. 120 mm Wärmedämmverbundsystem sorgen für eine sehr gute Energieeffizienz. Des Weiteren sind Holzfenster mit einem Uw-Wert von 1,10W/m²*K verbaut und das Einfamilienhaus wurde mit einer Erdwärmepumpe sowie zwei jeweils 85 Meter langen Erdsonden bestückt. Ein Sole-Erdwärmetauscher und eine Lüftungsanlage mit 85 % RWG runden die besonders gute Energieeffizienz ab.
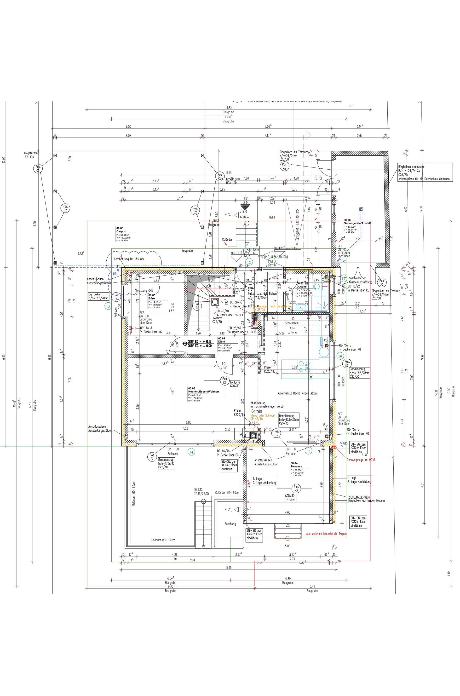
Neubau in Massivbauweise vollunterkellert mit Doppelcarport
Wohnfläche EG und OG 195,36 m² Terrasse im EG 21,00 m²
Ausgebauter Keller mit Einliegerwohnung 46,00 m² und Aussenterrasse 35,50 m²
sowie Wellnessbereich / Sauna
Fertigstellung in 2020
Energiestand gem. EnEV Kfw 55 Standart mit Wärmedämmverbundsystem
Gas-Brennwertanlage
Fussbodenheizung
Trinkwassererwärmung Solar Röhren-Kollektoren unterstützt
PV-Solaranlage 4,72 kWp mit Energiespeicher 9,3 kWh
Kontrollierte Be- und Entlüftungsanlage mit Wärmerückgewinnung
Elektroanlage KNX- Steuerung, Videoüberwachung, Alarmanlage
Regenwassernutzung Monolithischer Stb.-Behälter 10 cbm
kontrollierte Be- und Entlüftungsanlage.mit Wärmerückgewinnung 82 %
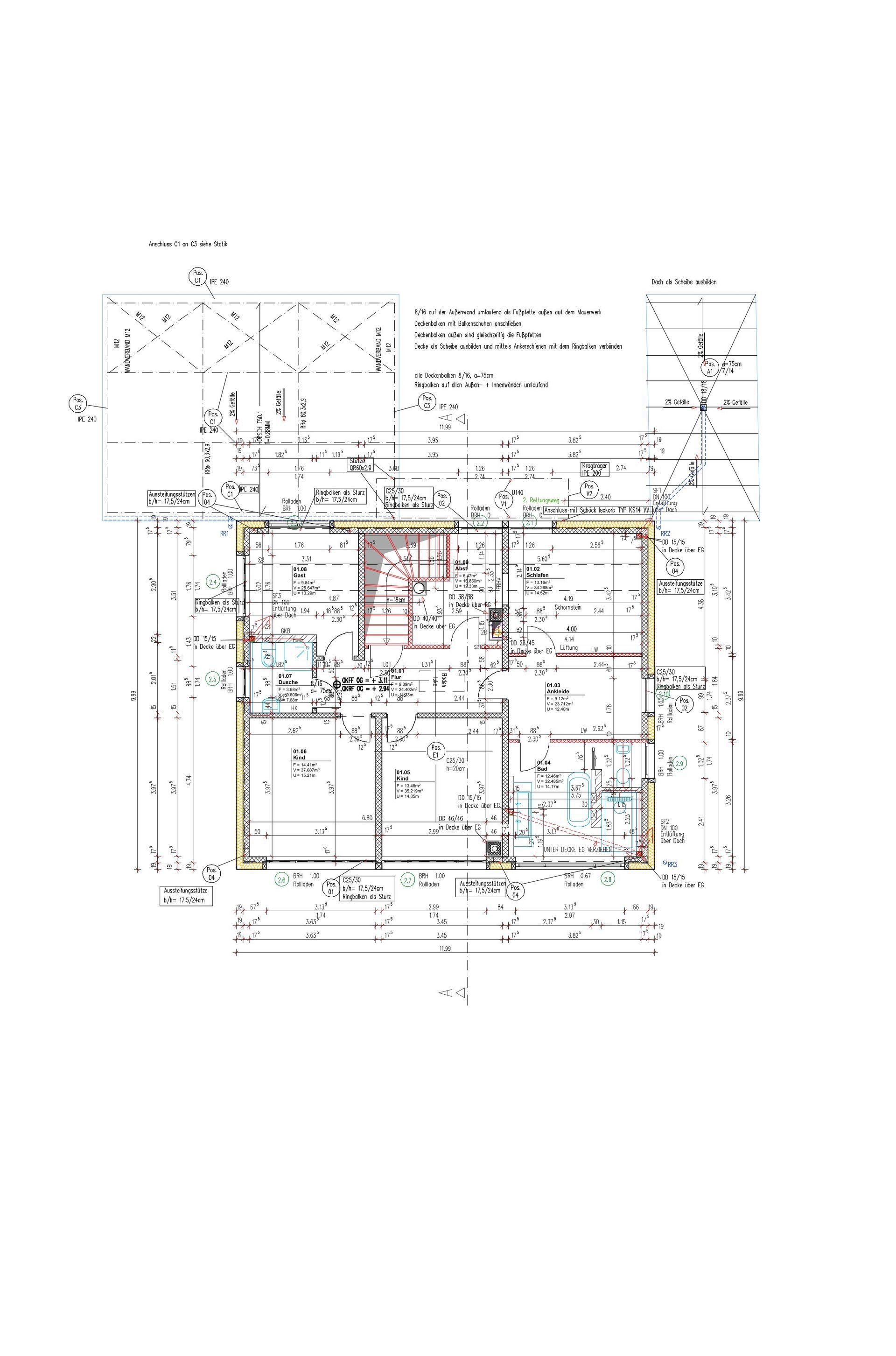
Neubeu Einfamilienwohnhaus, Lemgo Kirchheide
269 m² WF (EG,OG,SP) 120 m² NF KG, 1183 m³ umbauter Raum, Doppelgarage 71 m², 285 m³ umbauter Raum. Stb.-Vollunterkellerung wärmegedämmt, Masivbau 120 mm MW-Kerndämmung Verblendmauerwerk, Dachdämmung MW 220 mm, Erdwärmepumpe 2 x 90 m Erdsonden
Neubau Einfamilienwohnhaus, Lemgo
189,50 m² WF (EG, OG), 104,50 m² NF KG, 1237 m³ umbauter Raum, 27,50 m² NF 89,50 m³ u.R. Carport. Stb.-Vollunterkellerung wärmegedämmt, Massivbau 120 mm WDVS, Holzfenster Uw 1,10W/m²*K, Erdwärmepumpe, 2 x 85 m Erdsonden, Sole-Erdwärmetauscher, Lüftungsanlage 85% WRG
Neubau Einfamilienwohnhaus, Lemgo Hörstmar
125,50 m² WF (EG, OG), 833 m³ u.R. Stb.-Sohlplatte wärmegedämmt, Massivbau 140 mm WDVS, Dachdämmung 240 mm, Fenster Uw 1,1 W/m²*K, Sole Wärmepumpe, Erdflächenkollektor
Neubau Einfamilienwohnhaus, Lemgo
133 m² WF, 713 m³ Umauter Raum, Gründung auf Stahlrohrammpfählen und Stahlbetonträgerrost, Massivbau 160 mm WDVS, 260 mm MW-Dachdämmung, Fenster Uf 1,3 W/m²*K Ug 0,7 W/m²*K, Gaszentralheizung, Fussbodenheizung, Röhrensolarkollektor WW-Unterstüzung





