Planung beim Architekturbüro Vogt in Lemgo
Planung
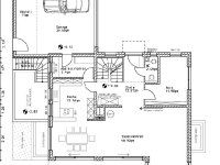
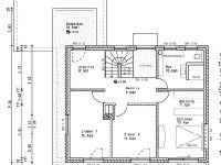
Das Architekturbüro von Dipl.-Ing. Germar Vogt steht Ihnen für Neubau und Sanierung in den Bereichen Gewerbe und Industrie zur Verfügung. Auch der Wohnungsbau gehört zu den Gebieten, in denen wir Ihnen unsere Leistungen anbieten. Unser Architekturbüro steht seit 12 Jahren für Qualität in Ostwestfalen/Lippe. Uns zeichnen Attribute wie Kompetenz und Erfahrung aus. Wir stehen Ihnen bei allen qualitäts- und sicherheitsrelevanten Fragen zur Seite. Von der Erstberatung über die professionelle und intensive Planung bis zur Bauüberwachung können Sie von uns ausschließlich erstklassige Leistungen während aller Phasen erwarten. Ebenfalls ist eine zielsichere Terminierung sowie präzise Kostenkontrolle für uns selbstverständlich. Ob Gewerbe, Industrie oder Wohnungsbau: Unser Architekturbüro übernimmt die Planung von Neubau und/oder Sanierung. Derzeitige Objekte, die wir in der Planung haben, sind zum Beispiel zwei Einfamilienhäuser in Lemgo. Ein weiteres Projekt, dessen Planung wir durchführen, ist der Neubau von drei Einfamilienhäusern in Detmold. Des Weiteren überwachen wir die Errichtung einer Tierarztpraxis im Kreis Warendorf.
Ein besonderes Projekt, das wir im Moment bearbeiten, ist der Neubau eines energieeffizienten KfW-70-Einfamilienhauses in Kalletal. Selbstverständlich finden sich unter unseren aktuellen Planungsprojekten zurzeit auch Umbauten und Sanierungen. Wir planen und überwachen den Ausbau eines Dachgeschosses und die Errichtung einer dreigeschossigen Balkonanlage bei einem Mehrfamilienhaus in Bielefeld Mitte. Des Weiteren planen wir den Umbau des Dachgeschosses einer Wohnanlage in Detmold. Es kommen immer weitere Projekte hinzu, deren Projektplanung wir Ihnen auf dieser Seite vorstellen möchten. Schauen Sie daher gerne öfter auf dieser Webseite nach. Sie werden immer wieder neue Zeichnungen und Fotos unserer Tätigkeit vorfinden. Haben auch Sie Fragen bezüglich Planung oder möchten demnächst einen Neubau errichten oder eine Sanierung beziehungsweise einen Umbau durchführen? Nehmen Sie jederzeit herzlich gerne Kontakt zu uns auf.
