Sanierungen und Umbauten mit dem Architekturbüro Vogt in Lemgo
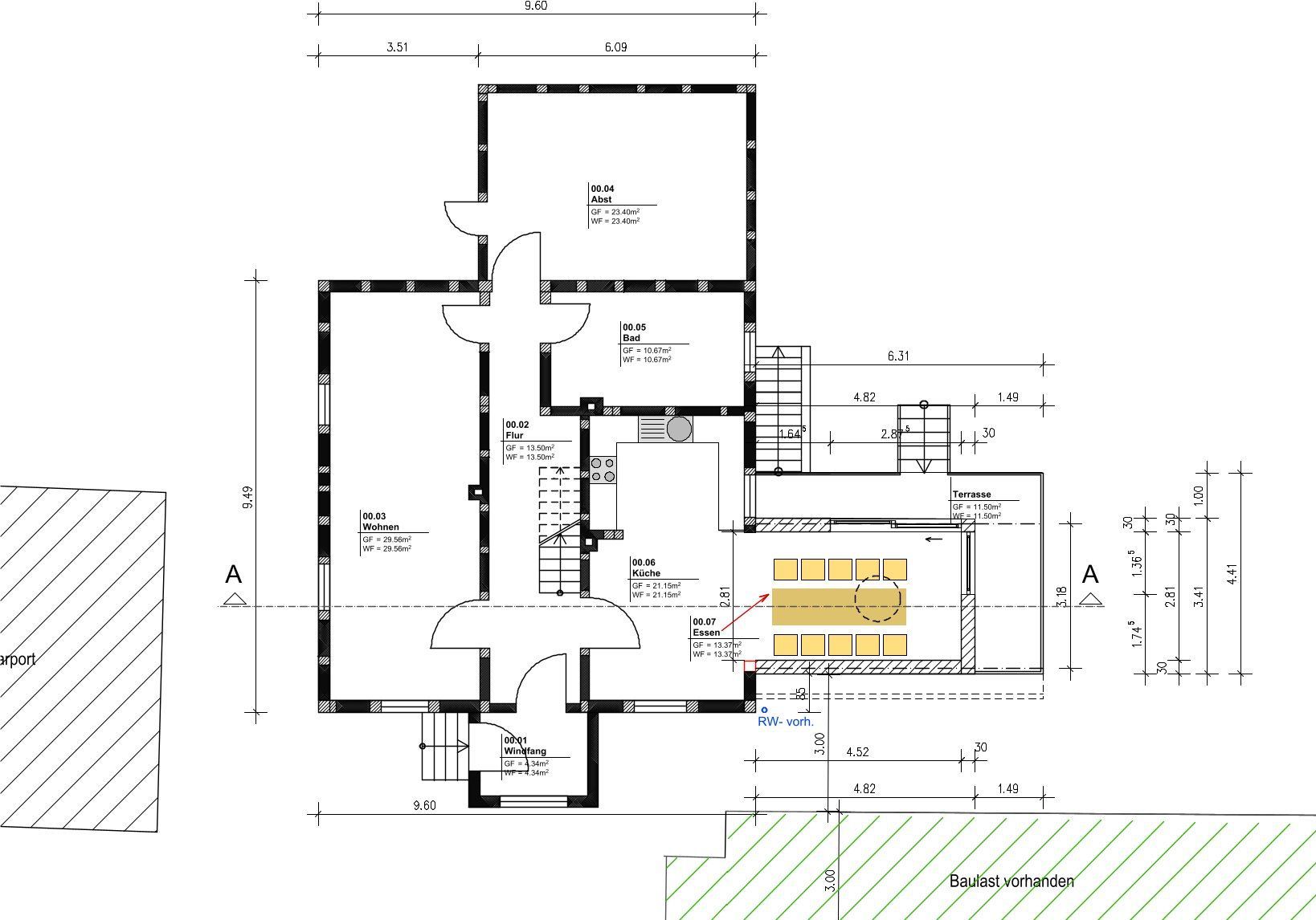
Anbau als Wohnraumerweiterung
Es handelt sich um einen aufgeständerten Anbau als Wohnraumerweiterung ca. 14,00 m² in Holzrahmenbauweise mit Terassendeck ca. 11,50 m²und Freitreppenanlage.
Kernsanierung eines Wohnhauses Baujahr 1964
Wir stellen Ihnen hier die Fotodokumentation der Kernsanierung eines Wohnhauses vor, das ursprünglich im Jahr 1964 errichtet wurde. Auch wurde ein Umbau vorgenommen. Unser Architekturbüro übernahm die Änderung der Grundrisse. Es wurde ein Austausch der Bäder sowie eine Erneuerung der Haustechnik vorgenommen. Alle Heizungs-, Sanitär- und Elektroinstallationen wurden erneuert. Auch wurden die alten Fenster gegen neue, energieeffiziente Modelle getauscht und eine Fassadendämmung vorgenommen. Selbstverständlich planten wir eine Dachneueindeckung mit Dämmung. Alle Leistungsphasen und der Umbau wurden von unseren Architekten engmaschig überwacht.
Umbau eines Wohnhauses
Bei dem vorgestellten Umbau übernahm unser Architekturbüro die Planung der Innenräume und Außenanlagen. Es erfolgte eine vollständige Erneuerung der Küchen und Bäder sowie eine Neugestaltung des Wohnzimmers. Ein Kaminofen wurde eingebaut, um zum einen für wohnliche Atmosphäre zu sorgen und zum anderen mit seinem günstigen Brennwert die Energiekosten zu optimieren. Auch wurden wir mit der Neugestaltung der Garten- und Außenanlagen betraut. Lassen Sie sich von den eingestellten Fotos unserer Architekten inspirieren, welche kreativen Ideen wir bei diesem Objekt umgesetzt haben.
Fachwerksanierung
Auch die Fachwerksanierung gehört zu unserem Metier. Hier zeigen wir Ihnen Bilder einer Kernsanierung eines unter Denkmalschutz stehenden Fachwerkhauses in Lemgo Wahmbeckerheide. Unser Architekturbüro übernahm die Planung dieses außergewöhnlichen Projektes, was mit hohen Auflagen wegen des Denkmalschutzes verbunden war. Wir kümmerten uns um die Erneuerung der Schwellhölzer und der unteren Fachwerkstiele. Auch die Mauerwerksausfachungen wurden saniert. Des Weiteren nahmen wir eine Verstärkung der Dachkonstruktion vor und dämmten die Außenwände mit nachhaltigem Strohleichtlehm auf Schilfrohrgeflecht. Die Dämmung der Giebel- und Dachflächen wurde mit Zellulose ausgeführt. Auch eine Rekonstruktion der Fenster sowie der Dachkonstruktion einschließlich der Dachneueindeckung nach denkmalpflegerischen Gesichtspunkten wurde von unseren Architekten geplant. Wir verwendeten Eichenholz und Tonziegel. Auch bauten wir eine Zentralheizung ein und erneuerten die komplette Haustechnik (Elektro-, Sanitär- und Heizungsinstallation). Dieses Projekt wurde mit Fördermitteln des Landes Nordrhein-Westfalen unterstützt.




